Rif: AV/146
FIRENZE
FIRENZE - zona D'Azeglio
Immobile a pochi metri dalla futura fermata della tramvia su Viale Gramsci, composto da:
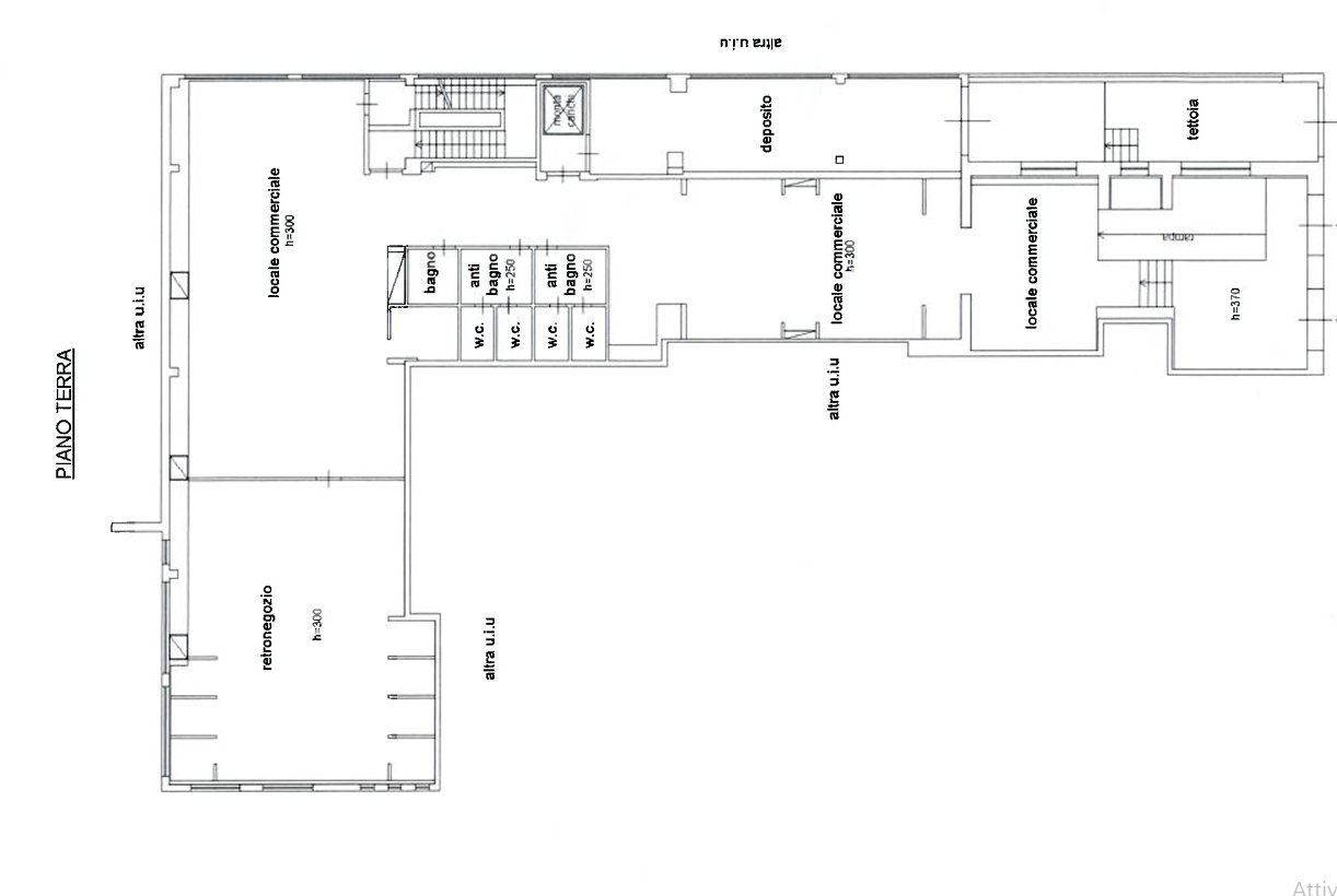
PIANO TERRA (500mq) - con 2 vetrine su Via Silvio Pellico ed un ingresso carrabile ed un ingresso carrabile con possibilità di e scarico.
AMPIO open-space diviso in 2 stanze con 2 bagni .
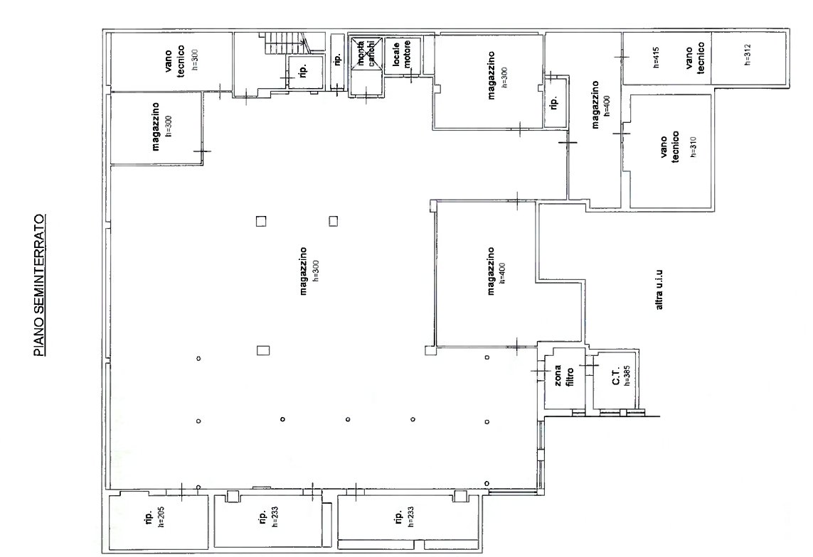
PIANO INTERRATO (800mq) - collegato al piano terra mediante scala ed ascensore, presenti 3 vani open-space con grande vano tecnico.
RIFERIMENTO ANNUNCIO - AV/146
PIANO TERRA (500mq) - con 2 vetrine su Via Silvio Pellico ed un ingresso carrabile ed un ingresso carrabile con possibilità di e scarico.
AMPIO open-space diviso in 2 stanze con 2 bagni .
PIANO INTERRATO (800mq) - collegato al piano terra mediante scala ed ascensore, presenti 3 vani open-space con grande vano tecnico.
RIFERIMENTO ANNUNCIO - AV/146
Consistenze
| Descrizione | Superficie | Sup. comm. |
|---|---|---|
| Principali | ||
| Ufficio - piano terra | 1.300 Mq | 1.300 Mqc |
| Totale | 1.300 Mqc | |






